1. W przejściach pod torami, do celów ewidencyjnych, należy rozróżniać części składowe przejścia, jednorodne pod względem konstrukcyjnym i eksploatacyjnym. Podział na części może dotyczyć podziału na długości przejścia jak i na szerokości przejścia. Jeżeli przejście pod torami składa się z dwóch lub więcej oddzielnych (zdylatowanych) konstrukcji dla różnych ciągów pieszych to każdą z nich należy ewidencjonować jako oddzielny obiekt.
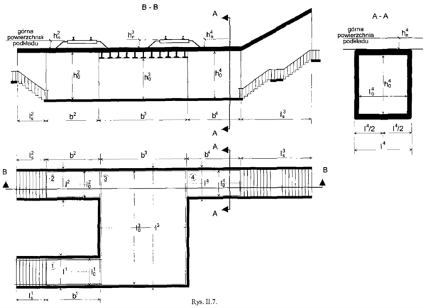
2. Parametrami geometrycznymi charakteryzującymi poszczególne części składowe przejścia pod torami są (rys. II.7):

1) długość części przejścia pod torami (I) -
odległość między zewnętrznymi krawędziami konstrukcji
części przejścia, mierzona poziomo wzdłuż osi toru;
2) długość eksploatacyjna części przejścia pod torami
(le) - łączna długość torów usytuowanych na rozpatrywanej
części przejścia pod torami;
3) szerokość części przejścia pod torami (b) -
odległość między punktami przecięcia osi części przejścia
z pionowymi płaszczyznami prostopadłymi do tej osi,
przechodzącymi przez najbardziej wysunięte punkty konstrukcji
części przejścia, mierzona wzdłuż osi części przejścia na
poziomie powierzchni przeznaczonej do ruchu, do szerokości
części przejścia me należy wliczać schodów i pochylni,
4) szerokość w świetle części przejścia (i0) -
najmniejsza na długości rozpatrywanej części przejścia pod
torami odleg!osc między ścianami przejścia, mierzona w
poziomie na wysokości powierzchni przeznaczonej do ruchu,
5) wysokość w świetle części przejścia pod torami (h0)
- najmniejsza na długości rozpatrywanej części przejścia pod
torami odległość między powierzchnią przeznaczoną do ruchu
a konstrukcją stropu przejścia, mierzona w pionie w połowie
szerokości przejścia pod torami,
6) wysokość naziomu nad częścią przejścia pod torami (h")
- najmniejsza mierzona w pionie odległość między konstrukcją
wydzielonej części przejścia pod torami a górną
powierzchnią podkładu,
7) pole powierzchni części przejścia pod torami w planie
(a) - pole powierzchni określane w obrysie zewnętrznych
krawędzi części przejścia pod torami,
3. Parametrami geometrycznymi charakteryzującymi przejecie
pod torami są:
1) długość obiektu (L) - suma długości (I)
poszczególnych części przejścia pod torami (bez schodów i
pochylni),
2) długość schodów i pochylni (Ls) - suma długości
poziomych rzutów wszystkich schodów i pochylni obiektu,
3) długość eksploatacyjna obiektu (Le) - suma długości
eksploatacyjnych (le) poszczególnych części przejścia pod
torami (bez schodów i pochylni),
4) pole powierzchni schodów i pochylni w planie (As) - suma
pól powierzchni rzutów poziomych wszystkich schodów i pochylni
obiektu,
5) pole powierzchni obiektu w planie (A) - suma poi
powierzchni w planie (a) poszczególnych części obiektu oraz
pola powierzchni schodów i pochylni (As),