

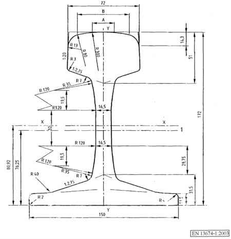
Rys. 1 Przekrój poprzeczny szyny UIC60


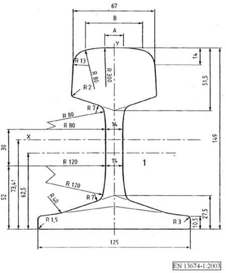
Rys. 2 Przekrój poprzeczny szyny S49

Powierzchnia przekroju poprzecznego |
76,70 cm2 |
Masa na metr |
60,21 kg/m |
Moment bezwładności względem osi x-x |
3038,3 cm4 |
Wskaźnik wytrzymałości przekroju - główka |
333,6 cm3 |
Wskaźnik wytrzymałości przekroju - stopka |
375,5 cm3 |
Moment bezwładności względem osi y-y |
512,3 cm4 |
Wskaźnik wytrzymałości przekroju względem osi y-y |
68,3 cm3 |
Wymiary wskaźnikowe A = 20,456 mm B = 52,053 mm |
|
Rys. 3 Przekrój poprzeczny szyny 60E1

Powierzchnia przekroju poprzecznego |
62,92 cm2 |
Masa na metr |
49,39 kg/m |
Moment bezwładności względem osi x-x |
1816 cm4 |
Wskaźnik wytrzymałości przekroju - główka |
240,3 cm3 |
Wskaźnik wytrzymałości przekroju - stopka |
247,5 cm3 |
Moment bezwładności względem osi y-y |
319,1 cm4 |
Wskaźnik wytrzymałości przekroju względem osi y-y |
51,0 cm3 |
Wymiary wskaźnikowe A =15,267 mm B =46,835 mm |
|
Rys. 4 Przekrój poprzeczny szyny 49E1
Tablica 1 Charakterystyki szyn typu UIC60 i S49
Parametr |
Jednostka |
Typ szyn |
|
UIC60 |
S49 |
||
Masa |
kg/m |
60,34 |
49,43 |
Wysokość |
mm |
172 |
149 |
Standardowe długości |
m |
25; 27,5; 30; 120 |
25; 27,5; 30; 120 |
Szerokość stopki |
mm |
150 |
125 |
Szerokość główki |
mm |
72 |
67 |
Grubość szyjki |
mm |
16,5 |
14 |
Średnica otworów łubkowych |
mm |
30 |
33 |
Powierzchnia przekroju |
mm2 |
7686 |
6297 |
Moment bezwładności Ix |
io-8m4 |
3055 |
1819 |
Moment bezwładności Iv |
io-8m4 |
513 |
320 |
Wskaźnik wytrzymałości |
10"6m3 |
335,5 |
240 |
Tablica 2 Charakterystyki innych typów szyn leżących w torach kolejowych
Typ szyny |
Masa [kg/m] |
Wysokość |
Szerokość stopki |
Szerokość główki |
Grubość szyjki |
Odległość otworów na śruby łubkowe |
Średnica otworów do śrub łubkowych |
Standardowe długości szyn [m] |
||
x |
y |
|
||||||||
[mm] |
||||||||||
6d/e |
33,4 |
134 |
105 |
58 |
11 |
d)61 e)61 |
120 120 |
150 |
30 |
15, 12 |
38 a/b (III a) |
33,48 |
128 |
110 |
60 |
12 |
a)56 b)56 |
110 155 |
160 |
25 |
12,8 |
L |
36,05 |
130 |
116 |
60 |
12 |
46 |
170 |
- |
32 |
18, 15 |
39 a/b (Ha) |
38,42 |
135 |
114 |
68 |
13 |
a)56 b)56 |
110 155 |
160 |
25 |
10,67 |
15a/c |
40,5 |
144 |
110 |
72 |
14 |
a)50,5 c)50,5 |
100 165 |
230 |
30 |
15, 12 |
S41 |
40,95 |
138 |
125 |
67 |
14 |
46 |
165 |
|
30 |
18, 15 |
8a/b |
41,0 |
138 |
110 |
72 |
14 |
a) 61 b)61 |
120 120 |
165 |
30 |
12 |
S42 |
42,48 |
140 |
125 |
68 |
13 |
46 |
170 |
|
34 |
30, 18, 15 |
S45 |
45,25 |
142 |
125 |
67 |
14 |
46 |
165 |
|
30 |
18, 15 |
C |
47,97 |
147 |
130 |
68 |
14 |
46 |
170 |
- |
34 |
30, 18, 15 |
Xa |
35,65 |
125 |
110 |
58 |
12 |
49 49 |
125 250 |
125 |
32 |
12,5 |
Odległości pomiędzy otworami na śruby łubkowe wg poniższego schematu:
