Załącznik
nr 11
SKRAJNIA BUDOWLI NA ODCINKACH TORU PROSTEGO I W ŁUKU
1.Wymagania
podstawowe:
1) skrajnia budowli jest to zarys figury płaskiej, stanowiący
podstawę do określania wolnej przestrzeni dla ruchu pojazdów
szynowych, na zewnątrz której powinny znajdować się wszelkie
budowle, urządzenia i przedmioty położone przy torze, z
wyjątkiem urządzeń przeznaczonych do bezpośredniego
współdziałania z taborem jak na przykład hamulce torowe w
stanie roboczym i przewody jezdne,
2) wymiary skrajni w kierunku pionowym liczy się w [mm] od
powierzchni główki szyny, a w kierunku poziomym - od osi toru,
3) skrajnię budowli oraz wybrane parametry wolnej przestrzeni
stosowane na istniejących liniach kolejowych regulują
postanowienia Polskiej Normy PN-69 K-02057 oraz przepisy UIC,
4) podane na rysunkach 1 - 4 wymiary skrajni budowli obowiązują
na prostych odcinkach toru oraz w łukach o promieniu większym
niż 4000 m i odnoszą się do prostokątnego układu
współrzędnych położonego w płaszczyźnie prostopadłej do
osi toru, którego oś pionowa pokrywa się z osią toru, a oś
pozioma leży w płaszczyźnie górnej krawędzi główki szyn,
5) w łukach o promieniach 4000 m i mniejszych należy stosować
poszerzenie poziomych wymiarów skrajni budowli zgodnie z
tablicami 1 i 2 ,
6) przy budowie nowych normalnotorowych linii, przy modernizacji
linii istniejących oraz przy wznoszeniu wszelkich budowli i
urządzeń, zarząd kolei może określić inne, dodatkowe
wymagania odnośnie skrajni budowli na administrowanych liniach
kolejowych.
2. Wymagania
uzupełniające
1) na mostach o długości do 10 m z torem na podsypce, w
konstrukcjach skrzynkowych i na przepustach oraz pod nowo
wybudowanymi obiektami mostowymi na szlaku, odległość dolnego
obrysu skrajni DE powinna wynosić nie mniej niż 700 mm poniżej
główki szyny,
2) na mostach z jazdą górą z obniżonym chodnikiem,
położenie punktów C i D należy przyjąć na poziomie
chodnika,
3) w tunelach poza skrajnią budowli, powinna być pozostawiona
dodatkowa przestrzeń o szerokości 300 mm na liniach dwutorowych
i 400 mm na liniach jednotorowych. Podana wolna przestrzeń poza
skrajnią budowli w tunelach powinna być zastosowana na całej
wysokości skrajni budowli, przy czym wymiar pionowy do górnej
obudowy tunelu w obiektach nowych powinien wynosić 5450 mm ,
4) skrajnię budowli z zastosowaniem wolnych przestrzeni w
konstrukcjach skrzynkowych długości powyżej 20 m, liczonych po
torze wewnątrz skrzynki wraz z równoległymi skrzydłami,
należy określać jak dla tunelu, a do długości 20 m należy
stosować wolną przestrzeń oznaczoną linią ABC,
5) najmniejsza odległość osi toru od krawędzi obudowy tunelu
stacyjnego, słupów, latarń, na peronie po którym odbywa się
ruch wózków bagażowych - powinna wynosić 4000 mm, a na
peronie bez ruchu wózków - 3000 mm; odległości te należy
zachować do wysokości 3050 mm nad główką szyny,
6) wrota lokomotywowni, wagonowni itp. nie wymagają stosowania
wolnych przestrzeni poza skrajnią budowli.
3. Na rys 1 -4 przedstawiono graficznie skrajnię budowli wg PN -69 K-02057 wraz z uwzględnieniem dodatkowego wymogu określonego w § 18 ust.5.
Objaśnienia do rys. 1 - 4
Wymiary na rys. 1
-4.
a = 135 mm dla przedmiotów nieruchomych stale połączonych z
szyną jezdną,
a = 150 mm dla pozostałych przedmiotów nieruchomych,
b = 41 mm dla kierownic przy krzyżownicach rozjazdów i
skrzyżowań torów,
b = 45 mm dla odbojnic, w przypadkach szczególnych za
zezwoleniem Ministerstwa Infrastruktury,
b = 67 mm dla przedmiotów nieruchomych w innych przypadkach.
Odsyłacze na rys. 1-4 .
1) dla
budowli wybudowanych przed wprowadzeniem tej skrajni dopuszcza
się 1770 mm,
2) dla wysokich peronów i innych urządzeń wybudowanych przed
wprowadzeniem niniejszej skrajni dopuszcza się 1700 mm,
3) dopuszcza się dla budowli i urządzeń wybudowanych przed
wprowadzeniem tej skrajni,
4) dla peronów na liniach zelektryfikowanych dopuszcza się 960
mm tylko za zgodą Ministerstwa Infrastruktury ,
5) dopuszcza się dla budowli wybudowanych przed wprowadzeniem
tej skrajni,
6) dopuszcza się w przypadkach szczególnych i tylko za zgodą
Ministerstwa Infrastruktury.
Wymagana wolna przestrzeń na rys. 1 -4
| AB | - na przystankach, |
| ABC | - na obiektach mostowych długości ponad 20 m bez wykuszy z jazdą górą, |
| ABCDE | - na szlakach, z wyjątkiem peronów na przystankach i przestrzeni na i pod obiektami mostowymi,, |
| ABGDE | - pod nowo budowanymi obiektami mostowymi na szlaku, |
| FG | - na stacyjnych torach głównych zasadniczych i dodatkowych oraz na obiektach mostowych długości poniżej 20 m lub długości powyżej 20 m z jazdą dołem, jeżeli istnieje wolna przestrzeń w płaszczyźnie dźwigara głównego, |
| FGD | - na obiektach mostowych długości poniżej 20 m lub długości powyżej 20 m z jazdą górą w przypadku zastosowania wykuszy oraz pod istniejącymi obiektami mostowymi na szlaku, |
| HI | - na torach stacyjnych, z wyjątkiem torów głównych zasadniczych i dodatkowych. |

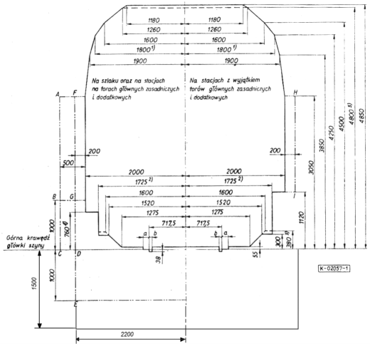
Rys.
1. Skrajnia budowli na liniach nie podlegających elektryfikacji
(skrajnia A)
Na rysunku dolnego obrysu skrajni zaznaczono dodatkowy
wymóg określony w § 18 ust. 5

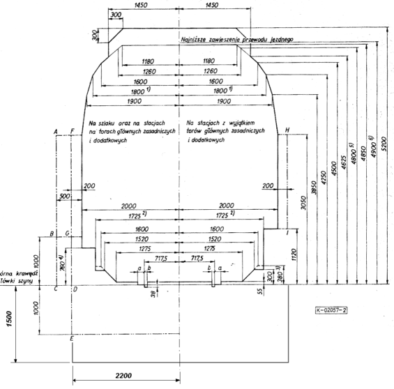
Rys.
2. Skrajnia budowli ulgowa linii zelektryfikowanych z siecią
górną, dla budowli istniejących (skrajnia B)
Na rysunku dolnego obrysu skrajni zaznaczono dodatkowy
wymóg określony w § 18 ust. 5

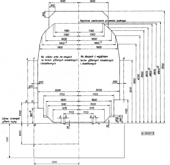
Rys.
3. Skrajnia budowli linii zelektryfikowanych z siecią górną
dla nowych budowli ciężkich, tj. takich których stateczność
umożliwia zakotwienie linki nośnej przewodów jezdnych trakcji
elektrycznej (skrajnia C)
Na rysunku dolnego obrysu skrajni zaznaczono dodatkowy
wymóg określony w § 18 ust. 5

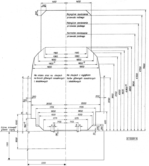
Rys.
4. Skrajnia budowli linii zelektryfikowanych z siecią górną
dla nowych budowli lekkich tj. takich których stateczność
uniemożliwia zakotwienie linki nośnej przewodów jezdnych
trakcji elektrycznej (skrajnia D)
Na rysunku dolnego obrysu skrajni zaznaczono dodatkowy
wymóg określony w § 18 ust. 5
4. Skrajnia na odcinkach toru w łuku:
1. w torach położonych w łukach o promieniach 4 000 m i mniejszych, pudła pojazdów szynowych będą ustawiać się równolegle do cięciwy, którą wyznaczają czopy skrętu wózków oraz ulegać będą pochyleniom do wewnątrz łuku, zgodnie z przechyłką jaka występuje na części kolistej łuku. Powoduje to konieczność poszerzania na łuku poziomych wymiarów skrajni podanych na odpowiednich rysunkach 1 - 4 o wartości:
a) w części wewnętrznej łuku:
bw=
bR+
bh
b) w części zewnętrznej łuku:
bz=
bR
gdzie:
bR - poszerzenie
wywołane ustawianiem się pojazdu wzdłuż cięciwy,
bh - poszerzenie
wywołane przechylaniem się pudła pojazdu torowego.
2. wartości
poszerzenia poziomych wymiarów skrajni
hR podane zostały w tablicy 1 i dotyczą
one zarówno poszerzenia wymiarów skrajni w części
wewnętrznej łuku, jak i w części zewnętrznej.
Tablica 1
Obustronne poszerzenia poziome wymiarów skrajni budowli [mm]
| R [m] | |
| 4 000 -3 500 | 10 |
| 3 500 - 2 500 | 15 |
| 2 500 - 1 800 | 20 |
| 1 800 - 1 500 | 25 |
| 1 500 - 1 200 | 30 |
| 1 200 - 1000 | 35 |
| 900 | 40 |
| 800 | 45 |
| 700 | 50 |
| 600 | 60 |
| 500 | 75 |
| 450 | 80 |
| 400 | 90 |
| 350 | 105 |
| 300 | 120 |
| 280 | 130 |
| 260 | 140 |
| 250 | 145 |
| 240 | 150 |
| 220 | 165 |
| 200 | 180 |
| 190 | 190 |
| 180 | 200 |
3. zmiany skrajni wywołane pochyleniem się pudła pojazdu na przechyłce h, uwzględnia się jako poszerzenie wymiarów poziomych skrajni jedynie od strony wewnętrznej łuku. Przy określonej przechyłce h, charakterystyczne punkty skrajni na wysokości Hi nad główką szyny wewnętrznej ulegają przemieszczeniu do wewnątrz łuku o wartość:

gdzie:
bh- poszerzenie
skrajni z uwagi na przechyłkę [mm],
Hi - wymiar pionowy skrajni na prostej [mm],
h - maksymalna wartość przechyłki jaka występuje na łuku
[mm].
W tablicy 2
zestawiono ekstremalne wartości poszerzenia
bh dla
charakterystycznych punktów skrajni przy różnych wartościach
przechyłek.
Tablica 2
Jednostronne poszerzenia poziome wymiarów skrajni budowli [mm]
| h [mm] | ||||||
| 4850 | 4250 | 3850 | 3050 | 1100 | 300 | |
| 150 | 490 | 430 | 390 | 305 | 110 | 30 |
| 145 | 470 | 415 | 375 | 300 | 105 | 30 |
| 140 | 455 | 400 | 360 | 285 | 105 | 30 |
| 135 | 440 | 385 | 350 | 275 | 100 | 30 |
| 130 | 420 | 370 | 335 | 265 | 95 | 25 |
| 125 | 405 | 355 | 325 | 255 | 90 | 25 |
| 120 | 390 | 345 | 310 | 245 | 90 | 25 |
| 115 | 375 | 330 | 300 | 235 | 85 | 25 |
| 110 | 355 | 315 | 285 | 225 | 80 | 25 |
| 105 | 340 | 300 | 270 | 215 | 80 | 20 |
| 100 | 325 | 285 | 260 | 205 | 75 | 20 |
| 95 | 310 | 270 | 245 | 195 | 70 | 20 |
| 90 | 290 | 255 | 230 | 185 | 65 | 20 |
| 85 | 275 | 245 | 220 | 175 | 65 | 20 |
| 80 | 260 | 230 | 205 | 165 | 60 | 15 |
| 75 | 245 | 215 | 195 | 155 | 55 | 15 |
| 70 | 225 | 200 | 180 | 145 | 50 | 15 |
| 65 | 210 | 185 | 170 | 135 | 50 | 15 |
| 60 | 195 | 170 | 155 | 125 | 45 | 15 |
| 55 | 180 | 155 | 145 | 110 | 40 | 10 |
| 50 | 160 | 145 | 130 | 100 | 35 | 10 |
| 45 | 145 | 130 | 115 | 90 | 35 | 10 |
| 40 | 130 | 115 | 105 | 80 | 30 | 10 |
| 35 | 115 | 100 | 90 | 70 | 25 | 10 |
| 30 | 100 | 85 | 80 | 60 | 25 | 10 |
| 25 | 80 | 70 | 65 | 50 | 20 | 5 |
| 20 | 65 | 60 | 55 | 40 | 15 | 5 |
4. w torach linii wielotorowych położonych w łukach, rozstaw torów należy zwiększyć o wartości podane w tablicy 3
Tablica
3
Poszerzenie rozstawu torów w łukach [mm]
| Promień łuku R [m] |
W przypadku przechyłki toru zewnętrznego większej od przechyłki w torze wewnętrznym | W pozostałych przypadkach | |||||||
| na szlaku | w torach głównych na stacjach | ||||||||
| dla linii kolejowych o prędkości v [km/h] | |||||||||
| v<100 | 100<v<160 | v>160 | v<100 | 100<v<160 | v>160 | v<100 | 100<v<160 | v>160 | |
| 4000 | 45 | 90 | 140 | 30 | 50 | 80 | 20 | 20 | 40 |
| 3500 | 45 | 100 | 150 | 35 | 60 | 100 | 20 | 20 | 40 |
| 3000 | 60 | 110 | 160 | 40 | 70 | 110 | 25 | 25 | 50 |
| 2000 | 90 | 170 | 250 | 65 | 100 | 130 | 35 | 35 | 70 |
| 1800 | 100 | 190 | 70 | 120 | 40 | 40 | |||
| 1500 | 115 | 230 | 80 | 140 | 50 | 50 | |||
| 1200 | 160 | 260 | 110 | 160 | 60 | 60 | |||
| 1000 | 220 | 270 | 145 | 170 | 75 | 75 | |||
| 800 | 230 | 280 | 160 | 190 | 90 | 90 | |||
| 700 | 255 | 300 | 180 | 200 | 105 | 105 | |||
| 600 | 260 | 320 | 190 | 220 | 120 | 120 | |||
| 500 | 290 | 340 | 220 | 250 | 145 | 145 | |||
| 400 | 340 | 260 | 180 | ||||||
| 350 | 375 | 290 | 205 | ||||||
| 300 | 425 | 335 | 240 | ||||||
| 250 | 480 | 385 | 290 | ||||||
| 200 | 560 | 460 | 360 | ||||||
| 180 | 580 | 490 | 400 | ||||||